Hoepel 25
Hoepel 25
Hoepel 25
Hoepel 25
Hoepel 25
Hoepel 25
Hoepel 25
Hoepel 25
Hoepel 25
Hoepel 25
Hoepel 25
Hoepel 25
Hoepel 25
Hoepel 25
Hoepel 25
Hoepel 25
Hoepel 25
Hoepel 25
Hoepel 25
Hoepel 25
Hoepel 25
Hoepel 25
Hoepel 25
Hoepel 25
Hoepel 25
Hoepel 25
Hoepel 25

Hoepel 25

Sliedrecht

€ 599.000,- k.k.

Omschrijving

Wonen in de geliefde en kindvriendelijke wijk De Grienden wordt wel heel aantrekkelijk met deze royale 2-onder-1-kapwoning op maar liefst 335 m² eigen grond! De woning beschikt over een extra brede garage, een grote carport en een heerlijk vrij gelegen, zonnige achtertuin op het zuiden. Hier geniet je van ruimte, rust én privacy — zowel binnen als buiten.

De huidige eigenaar is de eerste bewoner en heeft het huis niet alleen met zorg bewoond, maar ook altijd goed onderhouden. Direct bij de bouw is de woonkamer én de garage een meter verbreed, wat zorgt voor extra leefruimte. Door de jaren heen zijn bovendien diverse onderdelen vernieuwd: de keuken, de badkamer, de garagedeur, de dakbedekking van het platte dak en de massief eiken vloer op de begane grond. De 9 zonnepanelen (uit 2025) maken het plaatje helemaal compleet.

De royale woonkamer en keuken beslaan samen circa 55 m². Dankzij de brede opzet, grote ramen en de directe verbinding met de tuin geniet je hier van een prettige lichtinval en een fijne sfeer. De garage is bovendien binnendoor bereikbaar, ideaal voor dagelijks gemak.

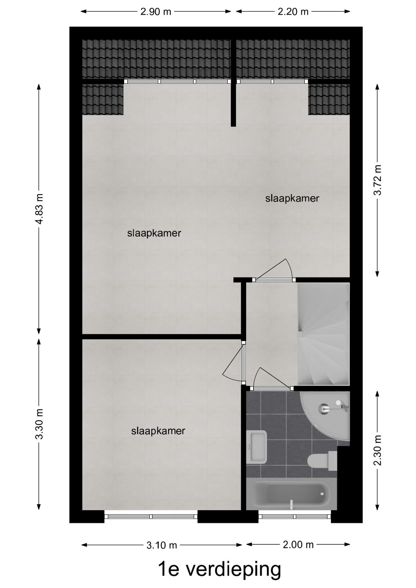
Op de eerste verdieping bevinden zich nu twee ruime slaapkamers (met een brede dakkapel aan de achterzijde), maar met een kleine aanpassing creëer je hier eenvoudig drie volwaardige slaapkamers. De nette badkamer is compleet uitgerust met ligbad, douchecabine, wastafel en tweede toilet. Op de tweede verdieping is een ruime overloop (o.a. met cv-opstelling en wasmachine-aansluiting) en een extra slaapkamer. Knieschotbergingen zorgen voor extra bergruimte.

De achtertuin is top: zuiden ligging, veel privacy en een combinatie van sierbestrating, gazon en beplanting. In het prieel geniet je beschut van lange zomeravonden, terwijl de houten berging praktische bergruimte biedt. Ook naast de woning (onder de carport) en aan de voorzijde is volop plek om te klussen of meerdere auto’s te parkeren op eigen terrein.
Lees meer

Kenmerken

Overdracht

Vraagprijs
€ 599.000,- k.k.
Status
beschikbaar
Aanvaarding
in overleg

Bouw

Soort woning
woonhuis
Soort woonhuis
eengezinswoning
Type woonhuis
twee onder een kapwoning
Aantal woonlagen
3
Bouwvorm
bestaande bouw
Bouwjaar
1990
Huidige bestemming
woonruimte
Onderhoud binnen
goed
Onderhoud buiten
goed
Voorzieningen
tv kabel, buitenzonwering, dakraam, zonnepanelen
Isolatie
dakisolatie, muurisolatie, vloerisolatie, dubbel glas

Energie

Energielabel
A
Verwarming
cv ketel
Warm water
cv ketel
C.V.-ketel
gas gestookte combi-ketel uit 2020 van Remeha HR, eigendom

Oppervlakten en inhoud

Woonoppervlakte
123 m²
Overige inpandige ruimte
22 m²
Perceel
335 m²
Inhoud
470 m³
Externe bergruimte
4 m²
Gebouwgebonden buitenruimte
24 m²

Indeling

Aantal kamers
4
Aantal slaapkamers
3

Buitenruimte

Ligging
in woonwijk
Tuin
achtertuin met een oppervlakte van 149 m² en is gelegen op het zuiden

Garage / Schuur / Berging

Garage
aangebouwde stenen garage
Parkeergelegenheid
op eigen terrein
Schuur/berging
vrijstaand hout

Plattegronden

Locatie

Downloads

Video's

360° foto's

Meer informatie?